
RESIDENZE DORADA – NUOVA COSTRUZIONE A CASELLE DI SELVAZZANO
Via Silvio Pellico
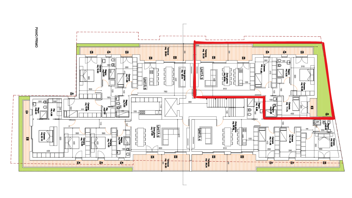
Appartamento spazioso e luminoso composto da un’ampia zona giorno open-space con accesso diretto a un terrazzo abitabile, ideale per pranzi all’aperto e momenti di relax.
La zona notte comprende tre camere da letto ben distribuite e due bagni, progettati per garantire comfort e funzionalità.
In uno dei quartieri residenziali più richiesti di Caselle di Selvazzano, nasce Residenze Dorada: un progetto moderno e curato, situato in zona comoda ai principali servizi (supermercati, farmacie, scuole, bus), perfettamente collegata al centro città e in costante sviluppo.
Gli appartamenti saranno realizzati con tecnologie costruttive di ultima generazione, orientati all’efficienza energetica e al massimo comfort abitativo, con finiture di alta qualità.
È prevista la possibilità di modifiche progettuali su richiesta, per personalizzare la tua casa secondo i tuoi gusti e le tue esigenze.
Ogni unità è dotata di garage e posto auto privato.
Contattaci per planimetrie e informazioni dettagliate.




